BROOKLYN PAPAYA

About
Selected pictures 

Project details 
Willow st 
Lafayette ave
Decatur st

Special maintenance
French drain


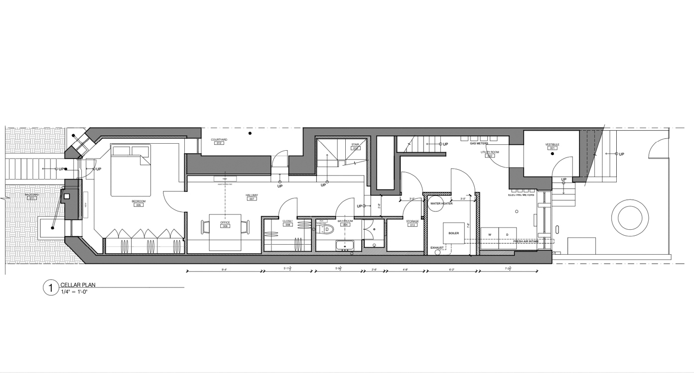
English basement progression, 2015-2016.