BROOKLYN PAPAYA

About
Selected pictures 

Project details 
Willow st 
Lafayette ave
Decatur st

Special maintenance
French drain


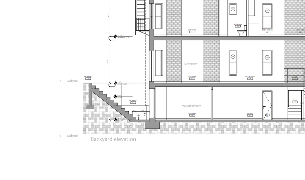
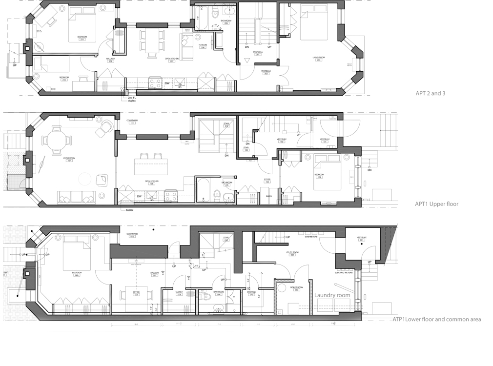
3 family and 4 stories brickhouse gut renovation located in Brooklyn, NY.
Contributed from acquirement, floor plan, selecting GC, managing construction and dealing with subcontractors and vendors.
As well as selecting fixtures and finishes.

Duplex

Duplex with objects.

Duplex before


APT 2 and 3

.
Floorplan and sketches

Water, Leak and Flood are the words that I do not want to hear. 
The most challenging part of the Decatur st project was to deal with water issues. Below pictures show some of steps that we took to address the issue.

Pointing exteior walls and applying stucco. Brand new roof and gutter. Lastly, new cappings on all windows in the back. 

Underground wall waterproofing

Fix west corner drain shaft and installing awning. 

Adding bump and installing awning.